Confort Montaña

Detalles

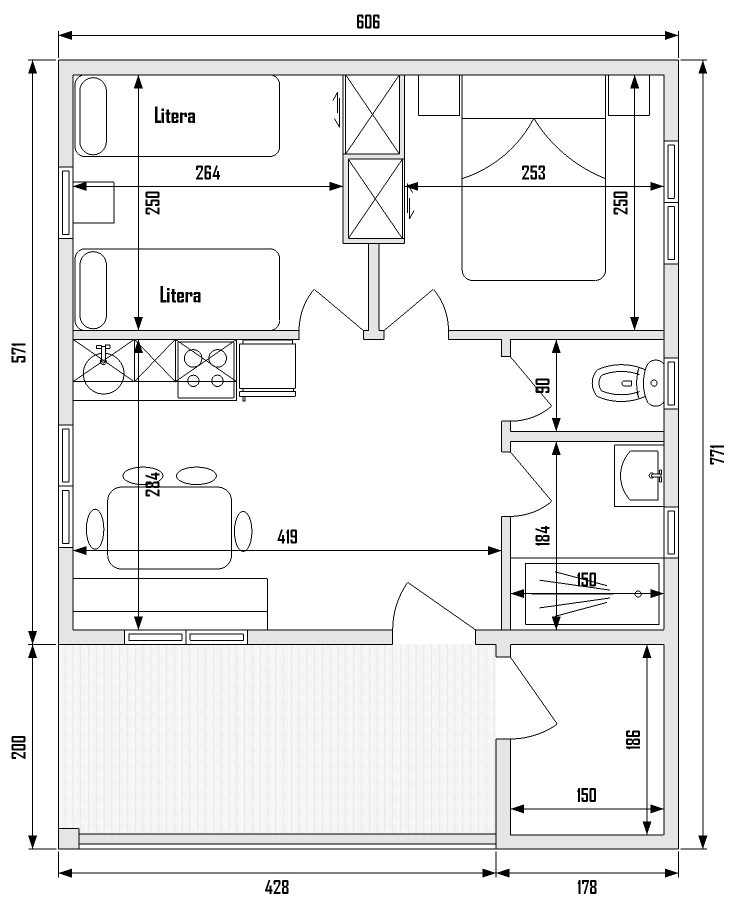
2 habitación - 6 personas

  • Superficie total 46,72 m²
  • Superficie útil 30,38 m²
  • Trastero 2,80 m²
  • Terraza 8,60 m²

Bungalow ideal para la montaña, dos habitaciones con capacidad de alojar a 6 personas, dispone de un trastero que permite guardar los equipos de deportes de invierno sin tener acceso al interior del espacio de vida, que brinda mas comodidad y practicidad. Cuenta con doble aislamiento y toda la calidez que brinda la madera.

Este bungalow es ideal para escapadas de fin de semana y vacaciones en cualquier época del año.

Diseñados para brindar comodidad, estilo y conexión con la naturaleza, estos bungalows se convertirán en un atractivo irresistible para tu camping.