Poucet

Detalles

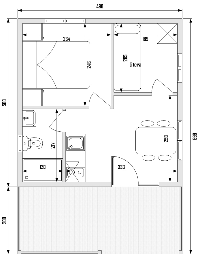
2 habitaciones - 4 personas

  • Superficie total 34,25 m²
  • Superficie útil 21,81 m²
  • Terraza 9,80 m²

Bungalow modelo Poucet, dos habitaciones, es ideal para una pequeña familia de 4 personas, un espacio confortable y acogedor.

Nuestros bungalows se entregan completamente equipados, llave en mano.

Opciones de personalización para satisfacer los requisitos específicos de cada cliente.