Modelo Confort Montaña

Detalles

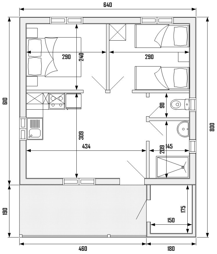
Superficie Total 51,30 m²
Superficie habitable 35,00 m²
Terraza 8,74 m²

Nuestros bungalows de madera económicos se caracterizan por la eficiencia tanto de sus diseños, sus aperturas (puertas y ventanas) y el aislamiento utilizado, combinándolo con el exterior en fibrocemento que implica durabilidad.

Para 5 personas 2 habitaciones, cocina comedor, sala de baño y WC.

Construcciones realizadas bajo la Normativa Térmica CTE y RITE.

Diseñar bungalows de madera económicos implica combinar materiales que sean eficientes en términos de costo y durabilidad.

Nuestras construcciones están realizadas cumpliendo las normas de rendimiento térmico y energético, para reducir el consumo de energía y las emisiones de gases de efecto invernadero, hacemos énfasis en el uso de materiales de construcción sostenibles y fomentamos el uso de fuentes de energía renovable.

Denotamos algunas consideraciones para lograr un diseño económico:

Estructura de madera: Utilizamos madera resistente para la estructura principal del bungalow. La madera es un material renovable y suele ser más asequible que otros tipos de materiales de construcción.

Revestimiento exterior de fibrocemento: El fibrocemento es una opción económica y duradera para el revestimiento exterior. Proporciona resistencia al agua, a los insectos y al fuego. Además, es versátil en términos de diseño y se puede pintar para lograr el aspecto deseado.