Modelo Versalles

Detalles

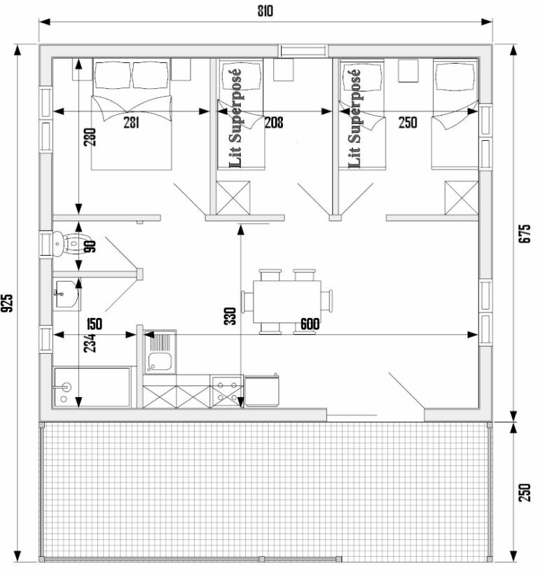
Superficie Total 74,92 m²
Superficie habitable 45,44 m²
Terraza 20,25 m²

Bungalows de madera personalizados. Un lugar a tu medida.

Para 6/7 personas 2 habitaciones, cocina comedor, sala de baño y WC.

Bungalows de madera personalizados, nuestro objetivo es la satisfacción de las necesidades individuales.

Lo principal: La madera, como material sólido y duradero, para un estilo cálido y sostenible.

Variedad de Estilos: Múltiples estilos que se adaptan a diferentes preferencias arquitectónicas. Desde rústico hasta contemporáneo, cada diseño es único. Revestimientos exteriores de fibrocemento para resistencia y bajo mantenimiento.

Personalización Interior: Espacios interiores totalmente personalizables para satisfacer tus necesidades. Diseño de interiores que refleja tu estilo de vida y preferencias.

Eficiencia Energética: Aislamiento adecuados para reducir costos energéticos. Ventanas eficientes para maximizar la entrada de luz natural.

Proceso de Diseño: Colaboración estrecha con nuestros clientes desde la concepción hasta la construcción. 3D renders para visualizar el diseño antes de la construcción.

Proyectos Destacados: Muestra de proyectos personalizados exitosos.

Presupuesto y Financiamiento: Ofrecemos opciones de financiamiento flexibles. Transparentes en el presupuesto.